Appartement T4 avec fort potentiel – 225 m² loi Carrez – emplacement stratégique à Saint-Julien-en-Genevois
Saint-Julien-en-Genevois (74160)Un bien rare aux volumes généreux, au cœur d’un secteur en pleine évolution
Visite virtuelle en ligne !
Petite copropriété à faibles charges !
Situé 11 avenue de Genève, dans un immeuble bien placé de Saint-Julien-en-Genevois, cet appartement offre une opportunité unique pour un projet de résidence principale évolutive ou un investissement locatif ambitieux.
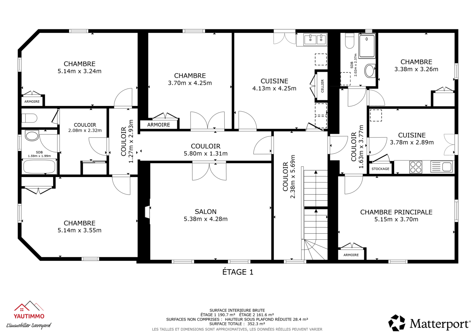
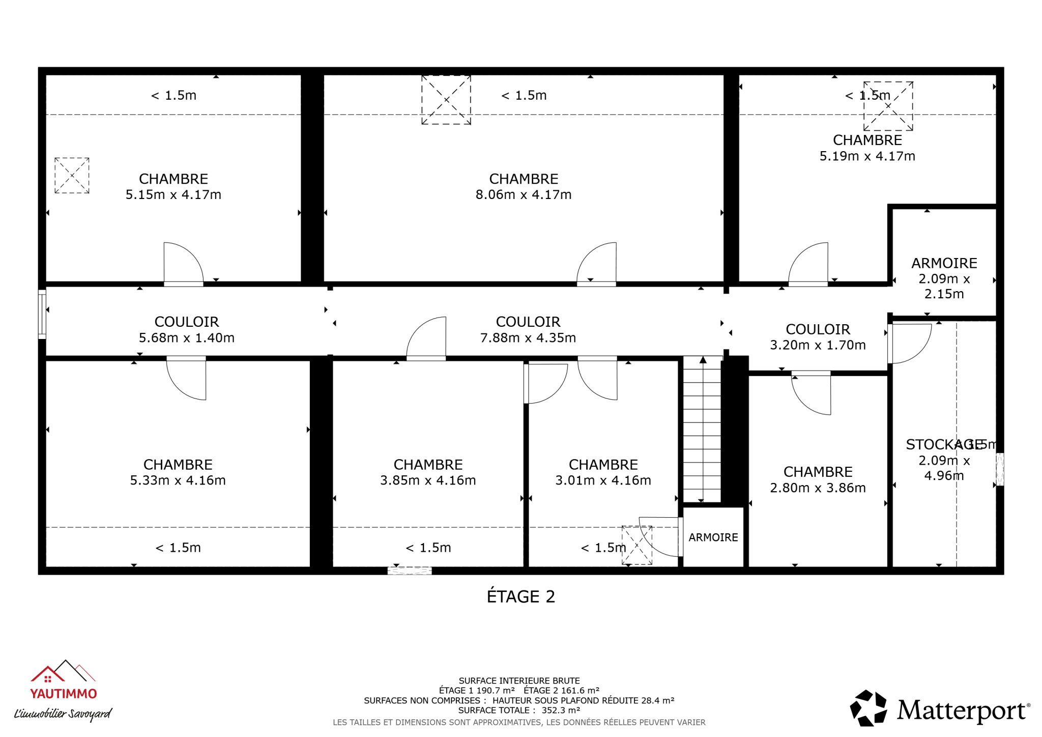
Avec 225 m² loi Carrez et environ 315 m² au sol, répartis sur deux niveaux, ce bien se distingue par ses volumes exceptionnels, ses hauteurs sous plafond et ses grandes ouvertures apportant une belle luminosité naturelle.
Un appartement habitable avec un étage entier à valoriser
L’appartement est aujourd’hui organisé comme suit :
-
Premier niveau :
-
Environ 114 m² habitables
-
Appartement T4 fonctionnel
-
Possibilité d’un simple rafraîchissement pour une mise au goût du jour
-
Grandes fenêtres et beaux volumes existants
-
-
Deuxième niveau :
-
Environ 120 m² loi Carrez à développer
-
Importants travaux à prévoir
-
Surface au sol supplémentaire conséquente, offrant de nombreuses possibilités d’aménagement
-
Création envisageable de chambres supplémentaires, suite parentale, espace bureau ou logements indépendants selon projet
-
Ce niveau représente un véritable levier de valorisation, aussi bien pour une occupation personnelle que pour un projet locatif.
Prestations techniques
-
Chauffage individuel au fuel
-
Immeuble existant, bien implanté en cœur de ville
-
Structure permettant une reconfiguration complète des espaces
Un emplacement exceptionnel pour les frontaliers
L’un des atouts majeurs de ce bien reste sa localisation stratégique :
-
Au pied du futur tramway, reliant directement Saint-Julien à Genève
-
Environnement urbain dynamique, recherché par les actifs transfrontaliers
-
Commerces et services immédiats
-
Appartement situé au-dessus de la boulangerie La Panière, repère apprécié du quartier
Un emplacement idéal pour une résidence principale confortable ou un investissement locatif sécurisé à long terme.
Un bien aux multiples projets possibles
-
Résidence principale familiale avec création de grands espaces sur mesure
-
Colocation haut de gamme grâce aux volumes et à la proximité de Genève
-
Projet patrimonial à forte valeur ajoutée après travaux
En résumé
Un appartement aux dimensions rares, offrant une base saine, un potentiel d’aménagement exceptionnel et une localisation stratégique dans un secteur en pleine transformation.
Un bien destiné aux acquéreurs visionnaires, souhaitant conjuguer espace, emplacement et potentiel de valorisation.
Contactez-moi pour plus d’informations et organiser une visite.
Caractéristiques du bien
Infos financières
Ce site est protégé par reCAPTCHA, les Politiques de Confidentialité et les Conditions d'Utilisation de Google s'appliquent.
Détails des diagnostics énergtiques
